SIGN UP CUSTOMER LOGIN
Main Photo

22 Total Photos [Click to View All]

Main Photo
Main Photo

1185 Clarence Avenue Oak Park, IL 60304

$268,800
Contingent / MLS# 12527844 / Residential - Single Family / Oak Park
4 Beds
2 Baths
1 Half Bath
1320 SqFt

Cottage-style 4BR/2.5BA home in South Oak Park location-walking distance to shops, restaurants, and Fitzgerald's. Built in 1903 with high ceilings, hardwood floors, natural woodwork, and original doors. First floor offers large living/dining room, updated white-cabinet kitchen with huge pantry, 2 bedrooms, office, and updated bath. Second floor features 2 bedrooms and half bath. Basement includes rec room, bonus room, storage, laundry, new Lennox furnace and 2nd full bath. 25x126 lot with privacy fence and 2-car garage. Sold As Is. Irving School/Percy Julian. Taxes 2023: $11,084.04 (no exemptions).

Read More » Read Less »

Baird & Warner Gayle Stellas Agent Cell: 847.602.6266 Email

Mortgage Calculator

%
years/fixed
yearly
yearly (est.)
(Payments are an estimate and may vary by lender)

Estimated Payment

$ 1,599.40 per month $597.33 Principal & Interest $923.67 Property Tax $78.40 Homeowner's Insurance
Get your competitive financing options.

Property Details

Property Type: Residential - Single Family
Basement: Partially Finished, Full
Basement: Yes
Cooling: Central Air
Garage: 2
Heating: Natural Gas, Forced Air
Home Style: Cottage
Lot Size: 0.07 Acres
Taxes: $11,084
Year Built: 1903

Feature Descriptions

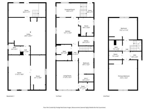
Additional rooms: Recreation Room, Foyer, Enclosed Porch
Association Includes: None
Exterior: Aluminum Siding
Lot Dimensions: 25x125
Parcel#: 16184240310000
Parking: Yes, Garage Owned, Detached, Garage
Sewer: Public Sewer, Storm Sewer
Total Rooms: 8
Township: Oak Park
Water: Lake Michigan

Room Information

Recreation Room: 19X11
Foyer: 5X3
Enclosed Porch: 13X7
Bedroom 2: 12X16
Bedroom 3: 12X8
Bedroom 4: 9X7
Dining Room: COMBO
Kitchen: 14X12
Laundry: 37X15
Living Room: 15X15
Primary Bedroom: 16X15

Schools

High School: Oak Park & River Forest High Sch
Middle School: Percy Julian Middle School
Elementary School: Irving Elementary School
School District: District 200

Disclaimer: The accuracy of all information regardless of source, including but not limited to square footage and lot size, is deemed reliable but not guaranteed nor warranted and should be personally verified through personal inspection by and/or with the appropriate professionals.

Location

See details and scored characteristics about this location.

Listing Office: RE/MAX In The Village

Listing Office Phone: 708-386-1400



Listing data and photos distributed by MLSGRID
Member Participants (and their affiliated licensees, if applicable) shall indicate on their websites that IDX information is provided exclusively for consumers’ personal non-commercial use, that it may not be used for any purpose other than to identify prospective properties consumers may be interested in purchasing, that the data is deemed reliable but is not guaranteed by MLS GRID, and that the use of the MLS GRID Data may be subject to an end user license agreement prescribed by the Member Participant’s applicable MLS if any and as amended from time to time. MLS GRID may, at its discretion, require use of other disclaimers as necessary to protect Member Participant, and/or their MLS from liability.
Based on information submitted to the MLS GRID. All data is obtained from various sources and may not have been verified by broker or MLS GRID. Supplied Open House Information is subject to change without notice. All information should be independently reviewed and verified for accuracy. Properties may or may not be listed by the office/agent presenting the information.


Login to my Baird & Warner account

Pixel